Our Inaugural Project:
Lancaster, Pennsylvania
A mixed-use workforce housing development designed to serve both residents and the surrounding community.
52 residential units
Grocery-anchored ground floor
~65–70% complete
Positioned in a strong rental market with clear demand for workforce housing.


Before: Underutilized Property.
After: 52 Workforce/Affordable Apartments and Grocery Store
Future Developments
Elevare is building a forward-looking pipeline of workforce and mixed-income housing across Pennsylvania and the broader Mid-Atlantic region. Building on the momentum of our Lancaster development, we are actively advancing future opportunities—including a planned community in Carlisle—while expanding our reach into additional high-need markets. We aim to deliver about 1,000 thoughtfully designed apartment units over the next five years, creating stable housing, supporting local economies, and strengthening the communities we serve.
Project Update 12.31.25
Project Update 1.26.26
Project Update 2.26.26
Project Update 3.23.26
Project Updates
Here are the Happenings from the Lancaster Project Site


Project Update - February 11, 2026
🚀Exciting progress at 800 South Queen Street!
Access to all floors of the multi-family residential and mixed-use building is now available following completion of the stair towers, allowing interior work to continue. Window installation is underway and approximately 40% complete, with Tyvek® wrap being installed on the upper floors to protect against moisture and improve energy efficiency. Extremely cold winter temperatures have delayed roof completion, but work will resume once temperatures consistently exceed 40° to ensure proper adhesion.














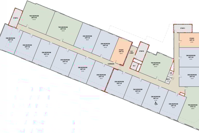
Floor Plans




Overall First Floor
Overall Fourth Floor
Overall Second and Third Floor


Studio Apt.








1 Bedroom Apt.
2 Bedroom Apt. V1.
2 Bedroom Apt. V2.
2 Bedroom Apt. V3.
Features
Built In Washer/Dryer
Rooftop Garden/
Community Supported Agriculture Program
Community Room
Wheelchair Accessible and ADA Compliant








Security Monitoring
High Speed Communication
Renewable Energy/Solar
Free Parking








Sustainability Concept
The entire project will be designed with a commitment to environmental sustainability, and we will reduce unnecessary carbon emissions while maintaining the necessities to support a modern lifestyle.
In addition to implementing state-of-the-art clean energy technology, redevelopment plans will include a community rooftop garden from which tenants can participate in a community-supported agriculture (CSA) program.
At every project stage, these efforts require close cooperation of the Mayor and City Council, Lancaster City housing and community organizations, the design team, architects, engineers, and the community. The green building practice expands and complements the classical building design concerns of economy, utility, durability, and comfort.




A Decade of Ambition
Discover how we're set to transform communities over the next ten years.


Interested in investing in these developments?
Address
128 E Grant Street
Suite 103
Lancaster, PA 17602
Contacts
717-715-0238
hello@elevarecommunities.com
Subscribe to our newsletter
Legal
Privacy Policy
Terms of Use
Data Room Access
Disclaimer
Investments are speculative and involve substantial risk, including possible loss of capital. Opportunity Zone investments are subject to complex tax rules, and any potential benefits depend on individual circumstances. This website is for informational purposes only and does not constitute an offer or solicitation of securities. Any offering is made only to qualified investors pursuant to a Private Placement Memorandum. Certain investments may be structured to align with program-related investment (PRI) objectives; prospective investors should consult their own legal, tax, and financial advisors.
© Elevare Corporation, 2026. All Rights Reserved.
